霧化測試儀霧化試驗
機動車是一種關系到駕駛員和他人生命財產安全的產品。安全地控制車輛取決于許多因素,特別是在車外不同環境下的可視化和可視性,如刺眼的陽光、霧、雨、夜間光線較少、其他車輛發出的光等;此外,當納圖拉制造的車輛內部部件在擋風玻璃上形成霧或蒸發。l材料、聚合物或紡織品加熱后,以一定速度釋放出揮發性和半揮發性有機化合物。因此,有必要正確設計和選擇內部零件的材料,以防止這些化合物和霧形成,從而影響駕駛過程中的視覺效果。因此,對每種材料制成的車內件排放的這些化合物進行測試對汽車零部件生產行業具有重要意義,因為這是制造商選擇和開發合適的低排放材料的支持數據。
通過對幾種基于國際標準(如DIN、ISO、SAE)的試驗結果的比較,指出影響汽車內飾材料試驗新參數的因素很多。
各汽車制造商對汽車零部件霧狀試驗有不同的參考標準,因此,汽車零部件制造商在進行試驗前需要了解將要使用的規范和標準。

圖1成霧
這里有兩個測試原理,即反射法和重量法。
反射系數或光度法是指入射光線撞擊玻璃并產生入射角,而反射光線與反射面(玻璃)垂直線之間的角度稱為反射角。
重量法是用重量法測量鋁箔板或其他材料上的殘留物。這是一種簡單的方法,但需要正確的稱重技術,物質樣品不得被其他物質污染。
測試樣品示例
根據液體吸收情況,可分為3組。
高吸水材料有布料、皮革、地毯等;低吸水材料有泡沫、PVC管、改性布。非分離材料以塑料珠為例。

圖2試樣示例
制備供測試的樣品
如果樣品表面是平的,如皮革、地毯、泡沫、塑料片,則需要以80毫米的圓形切割。直徑的另一方面,如果樣品具有其他形狀或無法測量,則需要進行切割或研磨。

圖3試樣尺寸和試驗類型示例
霧化試驗步驟:
如果樣品是皮革,則需要將其切成80mm的圓形。直徑的但是,如果不能切割成該形狀,則其重量不得小于10g。每個樣品必須根據參考標準重復試驗3-6次。然后,將其放入高的玻璃容器中,浸泡在70-100°C的油浴中(取決于樣品類型),然后將其保持在desicate中干燥,以消除濕氣。
對于反射測試,燒杯頂部將覆蓋一塊玻璃板。蒸發的物質會在冷卻板位于其頂部的板上凝結。特定時間結束后,取出玻璃板,用光澤度計測量玻璃反射前,將玻璃板置于溫度可控的干燥處。
為了通過重量測量進行分析,燒杯頂部將覆蓋鋁箔板。在規定的時間結束時,將鋁箔作為特定的標準保存在受控的溫濕度室中,以防止灰塵導致樣品溫度下降。然后測量復合材料的質量重量。

圖4工具和設備

圖5試驗用玻璃和鋁箔板
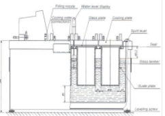
霧測試裝置:

圖片6
a)霧測試裝置–Haake
b)光澤計
c)重量秤-梅特勒-托萊多,5位小數
光度法測試示例:

圖7預測試

圖8開機自檢
結果計算:
通過反射系數或光度法
霧形成值計算公式(f)
其中,
Fj是指玻璃在j時形成霧的值(f),%
R1是指霧試驗對玻璃的反射值,%
R0:無霧玻璃反射值,%
以%表示的f值是以整數表示的fj值
重量法
復合材料在液體中的重量計算公式(g)
其中,
gj是指復合材料在液體中在鋁箔板上的重量,單位為J毫克。
g0為試驗前鋁箔片的重量,單位為毫克。
g1為試驗后鋁箔板的重量,單位為毫克。
報告g值為0.1毫克(mg.)(5位小數)






